Электрооборудование КТПТАС, КТППАС
?Быстрый вопрос в компанию Электропринцип. Мы перезвоним вам в ближайшее время.
Защита от автоматических сообщений
CAPTCHA
Введите слово на картинке*

КТПТАС, КТППАС

КТПТАС, КТППАС

КТПТАС и КТППАС производства компании "ЭП"

В числе продукции, выпускаемой компанией «Электропринцип», — трансформаторные подстанции КТПТАС и КТППАС. Для изготовления оборудования используются комплектующие высокого качества. Все подстанции сертифицированы и поставляются вместе с полным комплектом технической и сопроводительной документации

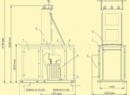
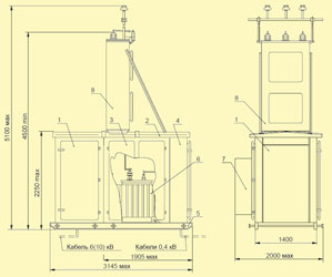
КТП типа ПАС и ТАС представляют собой проходные и тупиковые подстанции с вводным автоматическим выключателем стационарного исполнения. Имеют одно и двухтрансформаторное исполнение. КТППАС и КТПТАС предназначены для уличной эксплуатации. В комплекте КТППАС и КТПТАС могут поставляться СТ (ТМГ), разъеденители (РЛНД), УКРМ и узлы учета.

Цена КТППАС и КТПТАС определяется в соответствии с опросным лисом.

Опросный лист КТППАС и КТПТАС  предоставляется по запросу.

КТППАС и КТПТАС производства компании "ЭП" имеют полную заводскую готовность. КТППАС и КТПТАС  постоянно дорабатываются и модернизируются с целью облегчить и упростить доставку, установку и монтаж. Монтаж КТППАС и КТПТАС производится специализированными организациями. Схема КТППАС и КТПТАС определяется проектной организацией и в процессе производства без согласования не изменяется. КТППАС и КТПТАС освещение предусмотренно с функцией автоматического и ручного управления.

КТП-ПАС-М
КТП-ТАС-М
Технические характеристики КТППАС и КТПТАС

Мощность до 630 кВа. Габрит КТППАС и КТПТАС представлен на рисунке выше. УВН реализуется на КСО-3, РУНН на базе ЩО-91. ОСТ по умолчанию комплектуется маслянным трансформатором ТМГ, по пожеланию заказчика ОСТ может монтироваться сухой трансформатор ТСЗ. Шкаф УКРМ и АУКРМ монтируется на внешней стороне КТППАС и КТПТАС.

Трансформаторные подстанции, изготовленные ООО «Электропринцип»

Все комплектные подстанции КТПТАС и КТППАС произведены на современном оборудовании и прошли обязательную проверку. Использование современной системы контроля качества позволяет нам гарантировать соответствие трансформаторных подстанций заявленным характеристикам.

Консультанты ООО «Электропринцип» всегда готовы предоставить исчерпывающую информацию, касающуюся спецификаций трансформаторных подстанций. Мы поможем Вам с подбором подходящего оборудования и позаботимся о своевременной доставке.
Обратная связь