Электрооборудование ЩО-70
?Быстрый вопрос в компанию Электропринцип. Мы перезвоним вам в ближайшее время.
Защита от автоматических сообщений
CAPTCHA
Введите слово на картинке*

ЩО-70

ЩО-70

Панели распределительных щитов ЩО-70 собственного производства "ЭП

В каталоге ООО «Электропринцип» представлен большой выбор панелей ЩО-70. Все оборудование сертифицировано. Панели ЩО-70 можно купить по доступной цене. Благодаря наличию собственного производства, компания «Электропринцип» имеет возможность непрерывно контролировать параметры и качество продукции.

Панели одностороннего обслуживания ЩО-70 (семедисятый год разработки) используются для комплектования распределительных устройств РУНН комплектных трансформаторных подстанций. 

Описание ЩО-70

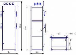
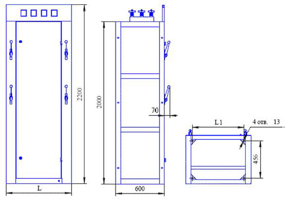
Габарит ЩО-70 высота 2200 (с козырьком), глубина 600 (800), ширина 300, 600, 800 мм. Обслуживание – односторонне. Ошиновка аллюминий (медь по спецзаказу) ЩО-70 комплектуются предохранителями, рубильниками, выключателями российского и импортного производства.

Электродинамическая стойкость:

  • панели ЩО-70 до 630 кВА – 30 кА;
  • панели ЩО-70 более 630 кВА – 50 кА.

Размер ЩО-70 может изменяться по согласованию с заказчиком (наличие собственного металлоцеха). Транспортировка ЩО-70 осужествляется вертикально в закрытом транспортном средстве.

Цена ЩО-70 определяетс япо опросному листу или принципиальной схеме. Также со стоимостью ЩО-70 Вы можете ознакомится в нашем прайсе. Техническое описание ЩО-70, опросный лист ЩО-70, схема ЩО-70 предоставляется по запросу.

Внешний вид ЩО-70

Эскиз и фото ЩО-70 показаны в низу данной страницы. Еще фото и чертежи ЩО-70 можно получить обратившись к нам.

Заказ ЩО-70 принимается с 9 до 18 часов по Москве, так что купить ЩО-70 можно позвонив или написав нам.

В связи с постоянным серийным производством ЩО-70 на складе поддерживаются в наличии следующие панели:

  • ЩО-70-1-03 (линия).
  • ЩО-70-1-05 (линия);
  • ЩО-70-1-33 (ввод);
  • ЩО-70-1-44 (ввод).
Обратная связь