КРН наружной установки. Цены на комплектные распределительные устройства наружной установки.
?Быстрый вопрос в компанию Электропринцип. Мы перезвоним вам в ближайшее время.
Защита от автоматических сообщений
CAPTCHA
Введите слово на картинке*

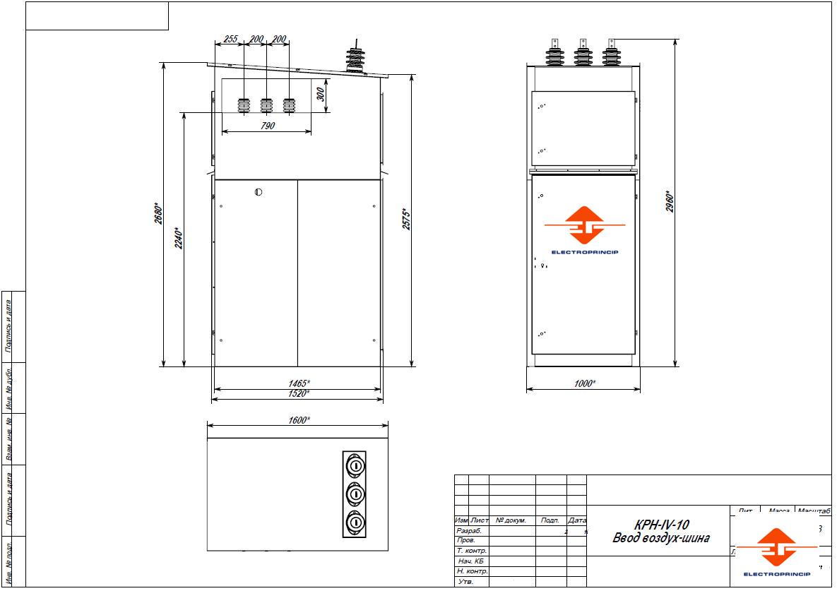
КРН-IV-10. Наружные распределительные устройства (КРУН)

КРН-IV-10. Наружные распределительные устройства (КРУН)

КРН может также использоваться как ячейка учета.

КРН-IV-10 серии КРУН наружной установки используются для комплектации объектов электроснабжения в том числе КТП и РТП, как для  строительства новых так и расширение и модернизация существующих. Также может также использоваться как ячейка учета.

Характеристики КРН

  • Напряжение, 10 кВ; Номинальный ток главных цепей, 630, 1000; 1600А; Напряжение цепей вспомогательных соединений, 220В; 
  • Габариты, мм - Ш: 1000; - Г: 1500; - В: 2800;
  • Масса, 970 кг.

Конструктив

  • КРН изготавливается из листового холодно-катанного металла с применением гаряче-катанного для усиления ее конструкции;
  • КРН комплектуется ВВ и ВНА, РЗА, ТТ, ТН, ТСН

Условия эксплуатации КРН

  • климатическое исполнение УХЛ;
  • максимальные значения температуры среды эксплуатации: +40-40°С;
  • постоянная температура эксплуатации не более +35°С
  • окружающая среда — не пожаро-взрывоопасная.

Назначение КРН при использовании в качестве ПС

  • Оперативное включение отключение.
  • Автоматическое отключение.
  • Автоматическое повторное включение.
  • На базе нескольких ПС — автоматическое включение резервного питания (АВР).
  • Учет энергопотребления.
  • Телеметрия, телемеханика.

Стоимость КРУН наружного исполнения

Цена на КРН-10 от 260 000 т.р. (на ВВ) и определяется в соответствии с ОЛ. Доставка осуществляется собственным автотранспортом или ТК. Схемы КРН-10 можно получить по запросу.

Обратная связь